Minimalistyczne mieszkanie – projekty z Izraela
Dzięki globalizacji na całym świecie „zaciera się” różnica kulturowa. My zachwycamy się mieszkaniami skandynawskimi, w mieszkańcy Azji, Afryki i Ameryki mieszkają tak jak w Europie. Oczywiście często są to kosmopolici, dla których świat jest domem!
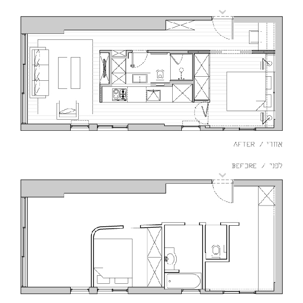
Prezentuje zatem miminalistyczne mieszkanie położone w Izraelu (Tel-Avivie). Apartament ma 40-metrów kwadratowych. Wszystkie meble są w kolorze białym, jedynie podłoga jest w kolorze jasnego dębu. Mieszkanie jest zdecydowanie minimalistyczne, wręcz „surowe”, prawie wszystkie rzeczy osobiste są schowane. Podoba się wam?










3 komentarze
Lifestyle Inspiracje
Prostota i minimalizm, brakuje mi takiej "przytulności". Pozdrawiam
Anonimowy
Fajne mieszkanie, ale do "pomieszkiwania" lub singla.
Anonimowy
a mi się bardzo podoba! nie lubię zbyt wielu "ozdobników" we wnętrzach a tu jest prosto i na temat.