DOM,  Mieszkanie dwupokojowe

Jak urządzić trzypokojowe mieszkanie – aranżacja, inspiracja, design

Jakiś czas temu na blogu prezentowałam Wam mieszkanie dwupokojowe, w którym charakterystycznym elementem wystroju wnętrza była ściana z cegły w aneksie kuchennym, aranżację można zobaczyć tutaj. Propozycja ta spodobała się wielu z Was zarówno na blogu, jak i facebooku. Specjalnie dla Was wyszukałam podobną aranżację. Ściana z cegły także ozdabia kuchnię. Także jest to element konstrukcji budynku.
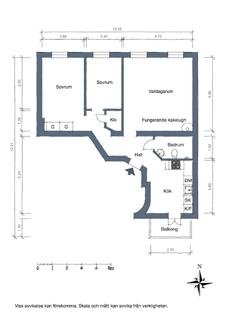
Mieszkanie jest duże, ma 70m2 i trzy pokoje: salon z jadalnią, sypialnię, pokój dziecka, a także kuchnię, łazienkę, mała garderoba i część komunikacyjną – korytarz. Całość zaaranżowana w skandynawskim stylu. W większości pomieszczeń położono bieloną drewnianą podłogę, ściany są białe lub szare. Pomimo sporej przestrzeni w mieszkaniu są tylko niezbędne meble. W salonie duża sofa, plastikowy przeźroczysty stolik, stół z czterema krzesłami, regał i piec/kominek. Pokój dziecka także w skandynawskim designie: jasny, minimalistyczny, kolor do wnętrza wprowadzają zabawki, ale w ograniczonej ilości.

foto alvhemmakleri.se

6 komentarzy

Dodaj komentarz

Twój adres e-mail nie zostanie opublikowany. Wymagane pola są oznaczone *