Jak urządzić trzypokojowe mieszkanie – aranżacja, inspiracja, design
Jakiś czas temu na blogu prezentowałam Wam mieszkanie dwupokojowe, w którym charakterystycznym elementem wystroju wnętrza była ściana z cegły w aneksie kuchennym, aranżację można zobaczyć tutaj. Propozycja ta spodobała się wielu z Was zarówno na blogu, jak i facebooku. Specjalnie dla Was wyszukałam podobną aranżację. Ściana z cegły także ozdabia kuchnię. Także jest to element konstrukcji budynku.
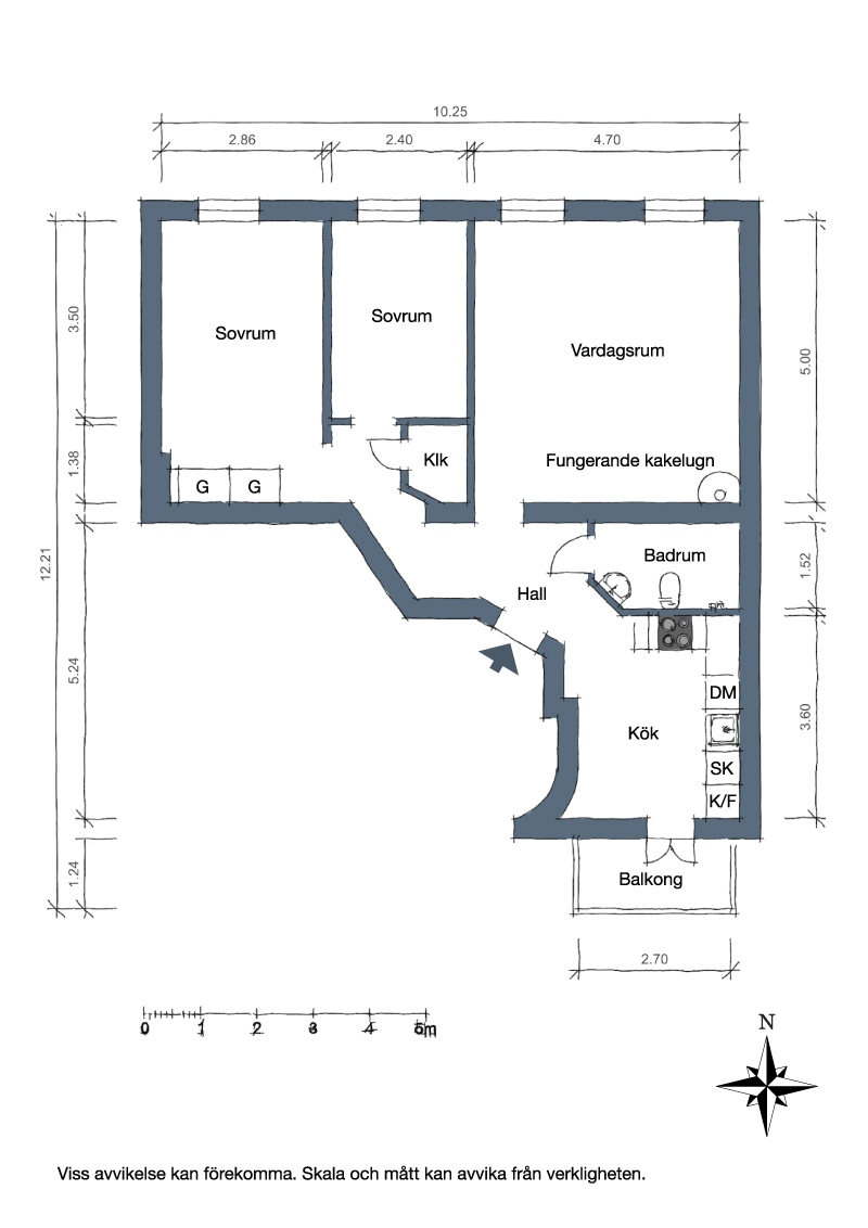
Mieszkanie jest duże, ma 70m2 i trzy pokoje: salon z jadalnią, sypialnię, pokój dziecka, a także kuchnię, łazienkę, mała garderoba i część komunikacyjną – korytarz. Całość zaaranżowana w skandynawskim stylu. W większości pomieszczeń położono bieloną drewnianą podłogę, ściany są białe lub szare. Pomimo sporej przestrzeni w mieszkaniu są tylko niezbędne meble. W salonie duża sofa, plastikowy przeźroczysty stolik, stół z czterema krzesłami, regał i piec/kominek. Pokój dziecka także w skandynawskim designie: jasny, minimalistyczny, kolor do wnętrza wprowadzają zabawki, ale w ograniczonej ilości.

foto alvhemmakleri.se


















6 komentarzy
Monika R.
Ehhh, ten piec kaflowy…boski! Kocham biel:))) I dziecięcy pokój…cudowny:)
Ula S.
Gdzie można kupić taki dywan do salonu? I z czego on jest, żeby go w ogóle znaleźć? Dzięki za jakąkolwiek informację.
Pościel Dziecięca
ten kominek wygląda bajecznie, pokój dziecięcy idealnie piękny <3
Fedkolor
Polecamy wam nasze dekoracje do waszych pokoi-salonów.
PaniWałek
Piękne wnętrze…
ten kolor ścian w sypialni to chyba szary, prawda?bo szukam takiego brudnego miętowego…na tym pierwszym zdjęciu sypialni ściany zdają się właśnie takie być,szaro-miętowe, może ktoś znalazł kiedyś taką farbę i poleci??
Asi Misz masz
Czysto, elegancko, stylowo… z klasą!!! Podoba mi się niesamowicie