Bez kategorii

Mieszkanie 37m2 – jak na małej przestrzeni urządzić wygodne miejsce do życia

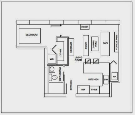
Mieszkanie ma 37m2 i jest przykładem jak na małej przestrzeni urządzić wygodne miejsce do życia. Znajduje się w Chicago, USA. Jest tutaj zaaranżowane miejsce do spędzania czasu w dzień, sypialnia i aneks kuchenny. Mimo małego metrażu jest przytulnie i nawet znaleziono miejsce na garderobę (drzwi za kanapą) i wieszak na rower !

5 komentarzy

  • Jacek

    Mistrzostwo, szczególnie miejsce na rower! Rzeczywiście na pierwszy rzut oka wydaje się, jakby mieszkanie miało przynajmniej 40 m2

  • Anna K.

    Mimo małego metrażu jest ciekawie urządzone, a użyte kolory i dodatki nie przytłaczają niewielkiej przestrzeni. Pomysłowa aranżacja 🙂 Pozdrawiam Cię i zapraszam do mnie w odwiedziny :))

  • Marta Więcław

    od razu rzuciło mi się wnętrze z żółtymi dodatkami, nie jestem przekonana do tego koloru ale tutaj wygląda super 😉 w sypialnie w ostatnim zdjęciu dałabym zupełnie inne łóżnko – pełne szuflad, szafeczek i półek pod materacem, możliwe, że jest tak zrobione bo jest bardzo wysokie 🙂

Dodaj komentarz

Twój adres e-mail nie zostanie opublikowany. Wymagane pola są oznaczone *