Bez kategorii

Mieszkanie typu studio w starym budownictwie

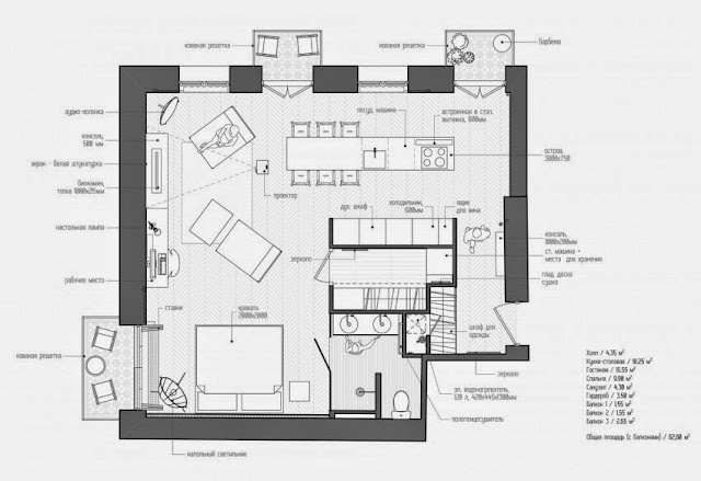
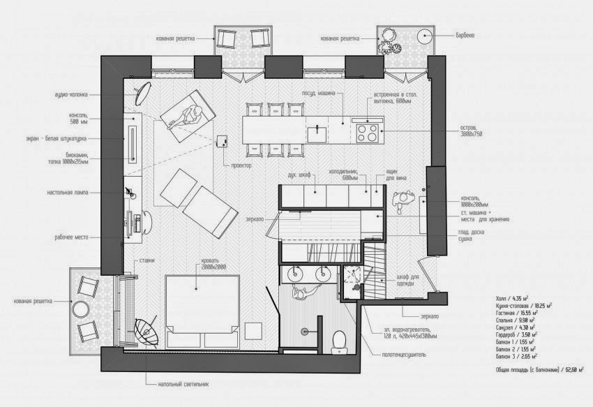
Mieszkanie typu studio zaaranżowane w starym budownictwie. Dzięki temu bardzo ładnie wkomponowane zostały elementy sztukaterii.  Otwarta przestrzeń, wejście do łazienki z części sypialnianej.  Całość urządzona w stylu minimalistycznym, jasne ściany, beżowa podłoga i nowoczesne dodatki.

 

foto source

6 komentarzy

  • Anonimowy

    Mam pytanie, bardzo liczę na odpowiedź a niestety nie mam kogo się poradzić, może Ty będziesz wiedzieć więcej…
    W sypialni mam krzywą podłogę… Niestety to pokrzyżowało mi plany dotyczące ustawień mebli…
    Teraz sypialnia jest mało przytulna a ja w niej się źle czuję 🙁
    Słyszałam, że nie można ustawiać szafy na krzywej podłodze gdyż może ona się rozejść/ulec zniszczeniu.
    Czy to prawda? Jeżeli tak to czy jest na to jakaś rada?
    Mam idealne miejsce na szafę, jedyne w którym by nie wadziła a właśnie tam jest najbardziej krzywa podłoga:(
    Dodam, że remont odpada a szafa jest z drzwiami przesuwnymi…
    Pozdrawiam i liczę na odpowiedź!

  • lampywdomu.pl

    Nie ma chyba rzeczy niemożliwych i na podstawie tego wpisu okazuje się, że w starym budownictwie można. Świetna inspiracja, jeszcze lepsze zdjęcia.

  • Anonimowy

    Bardzo fajny sufit. Takich sufitów ze świecą szukać 🙂 A ta szafa dodaje akcentu całemu pomieszczeniu. A to, że jest szafą i łazienką w jednym – jeszcze lepiej 🙂 Jedyne co mi się nie podoba to podłoga w pokoju. Jak dla mnie za bardzo pstrokata. Bardziej podobałaby mi się http://www.projektowaniewnetrz.in/assets/components/phpthumbof/cache/169.54be1ac3d2939bb965d9db453747744b10.jpg kamien, beton. Lub ciepły odcień drewna: http://www.projektowaniewnetrz.in/assets/components/phpthumbof/cache/519.54be1ac3d2939bb965d9db453747744b10.jpg

  • Lisa

    Świetna aranżacja. Dużo przestrzeni mimo, że wszystko jest w jednym pomieszczeniu. Naprawdę świetnie rozmieszczone. Przeraża mnie tylko ta łazienka za przeźroczystą szybą 😀

  • Collage Design

    Bardzo dobra jakość wizualizacji… A co do mieszkania to jedyny minus to położenie łazienki do której trzeba iść przez sypialnię.

Dodaj komentarz

Twój adres e-mail nie zostanie opublikowany. Wymagane pola są oznaczone *