Aranżacja mieszkania dwupokojowego
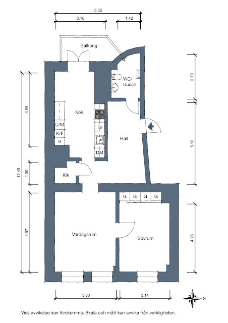
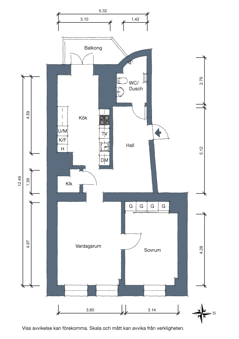
Mieszkanie dwupokojowe w skandynawskim stylu – aranżacja.Wnętrze ma 64m2 i znajduje się na trzecim piętrze – sześciopiętrowego budynku w Szwecji.
Składa się z dwóch pokoi: dziennego (salonu) oraz sypialni, oczywiście jest tut także kuchnia, łazienka i tzw. komunikacja – czyli przedpokój/ korytarz.
Pokój dzienny jasny, przestronny, bo z urządzony z zachowaniem zasad minimalizmu. Szara sofa z tkaniny, biała szafka rtv, a także miejsce do pracy – biurko w antycznym stylu.
Sypialnia z dużych łóżkiem, szafą w zabudowie, stojącym lustrem. Na ścianach naklejono tapetę.
Kuchnia przestronna, szafki białe z tzw. połyskiem, blat w kolorze drewna. Na podłodze kafle, ściany białe. W kuchni umieszczono także okrągły stół z czterema krzesłami. z tego pomieszczenia wychodzi się także na balkon.
Łazienka to połączenie bieli, szarości i beżu. W tym wnętrzu zadbano także o detale, korytarz jest dobrze zaprojektowany – znalazło się w nim miejsce na ławeczkę, toaletkę/ stół oraz starannie dobrane dekoracje ścienne.
foto alvhemmakleri


















207 komentarzy
Kathy Leonia
tak by wyglądało moje mieszkanie marzeń:D
Sylwia Chrobot
Piękne kontrasty kolorystyczne. Mieszkanie jasne, ale nie nudne. Zwłaszcza korytarz zwrócił moją uwagę 🙂
viagra 100 mg
Hi there to all, how is everything, I think every one is getting more from this web site, and your views are nice designed for new people.
viagra cost
Hi every buddy, it’s a wonderful fun at at this place watching these funny YouTube videos at here, pleasant stuff, thanks to admin
online viagra
In fact film is the display of some one’s feelings; it provides the lesson to the visitors.
cheap viagra
Its pleasant comic YouTube video, I all the time go to pay a quick visit YouTube web site designed for humorous videos, as there is much more information available.
cheap viagra
Downloading data from this site is as straightforward |as clicking the mouse rather than other websites which transfer me here and there on the webpages.
cost of viagra
I am John, how are you everybody? This paragraph posted at this web page is genuinely nice.
viagra substitute
This piece of writing will assist the internet users for setting up new blog or even a weblog from start to end.
cheap viagra
This post is pleasant and fruitful in favor of all new Personal home pages related web programmers; they must read it and do the practice.
where to buy viagra
Pictures are truly nice source of instruction instead of wording, its my knowledge, what would you say?
viagra online
If some one desires expert view on the topic of blogging afterward i propose him/her to pay a visit this web site, Keep up the nice work.
sildenafil 100mg
What a video it is! Actually amazing and nice quality, please upload more video tutorials having such fastidious quality. Thanks.
sildenafil 100 mg
That’s really a fastidious movie stated inside this piece of writing about how to write a post, therefore i got clear idea from here.
female viagra
This article will help the internet users for setting up new website or even a blog from start to end.
buy generic viagra online
Today I was so tired, and now this time I have got some rest by seeing this comic YouTube video, thanks, keep it up.
viagra generic
I’m gone to say to my little brother, that he should also visit this web site on regular basis to get updated from most up-to-date news.
viagra coupons
What a nice YouTube video it is! Remarkable, I liked it, and I am sharing this YouTube record with all my friends.
viagra pill
Every weekend i used to pay a visit this site, for the reason that i wish for enjoyment, since this this web site conations really fastidious funny material too.
female viagra
Thanks for sharing such a nice idea, paragraph is good, thats why i have read it completely
viagra substitute
Hello, this weekend is pleasant for me, since this point in time i am reading this enormous informative paragraph here at my home.
viagra for women
Really movie is the display of some one’s feelings; it offers the lesson to the users.
viagra for sale
Hi, its fastidious article on the topic of media print, we all be aware of media is a fantastic source of facts.
viagra without a doctor prescription
What’s up, this weekend is good in support of me, because this moment i am reading this impressive educational article here at my residence.
cheap viagra
Hi it’s me Fiona, I am also visiting this web site on a regular basis, this web page is truly fastidious and the visitors are truly sharing fastidious thoughts.
sildenafil 100 mg
YouTube consists of not just comical and humorous video clips but also it includes learning related video clips.
viagra 100mg
Hi dear, me and my mother are also watch comical movies except after I done my homework
viagra online
You have to waste less time to search your required matter on internet, since nowadays the searching methods of search engines are nice. That’s why I fount this post here.
viagra substitute
YouTube contains not just comic and humorous videos but also it contains educational related videos.
viagra substitute
If you want to increase your experience only keep visiting this website and be updated with the most recent news update posted here.
buy generic viagra online
What’s up I am from Australia, this time I am viewing this cooking related video at this website, I am truly happy and learning more from it. Thanks for sharing.
sildenafil 100mg
I also like Flash, however I am not a good designer to design a Flash, but I have software by witch a Flash is automatically produced and no more to hard working.
sildenafil 100mg
I think the admin of this website is actually working hard in favor of his web page, since here every information is quality based stuff.
viagra online
I got so bored today afternoon, but while I watched this YouTube humorous clip at this blog I turn into fresh and delighted too.
viagra tablets
My chief is as well eager of YouTube comic video lessons, he also watch these even in organization hehehe..
cost of viagra
There are also so many video uploading blogs, and these as well provide facility for distribution their video tutorials, but I think YouTube is the finest.
viagra natural
Wow, this post is pleasant, my sister is analyzing these kinds of things, so I am going to tell her.
viagra prices
Okay, and further more if you want update alerts from this site afterward you must subscribe for it, it will be a better for you Jackson. Have a nice day!
viagra coupons
It’s my first visit to this site, and I am genuinely amazed to see such a nice quality YouTube video posted at this place.
viagra cost
Hi there dear, are you enjoying with this humorous YouTube video? Hmmm, that’s good, I am as well watching this YouTube comical video at the moment.
sildenafil citrate
Asking questions are truly good thing if you are not understanding something completely, however this paragraph offers fastidious understanding yet.
viagra for women
Hi there, I want to subscribe for this weblog to obtain hottest updates, therefore where can i do it please help out.
generic viagra available
What’s up, yeah this article is in fact fastidious and I have learned lot of things from it on the topic of blogging. thanks.
generic viagra prices
Thanks to my father who told me on the topic of this webpage, this web site is in fact amazing.
female viagra pills
I read this paragraph fully on the topic of the difference of newest and previous technologies, it’s amazing article.
viagra online
It’s awesome to pay a quick visit this web site and reading the views of all friends concerning this post, while I am also eager of getting know-how.
viagra online
Truly no matter if someone doesn’t understand after that its up to other people that they will help, so here it happens.
buy viagra online
Sketches are really fastidious source of teaching instead of wording, its my familiarity, what would you say?
viagra uk
all the time i used to read smaller content that also clear their motive, and that is also happening with this paragraph which I am reading here.
viagra 100 mg
I am genuinely eager of watching comical video lessons at youtube, and this video clip is genuinely so comic, hehehhe.
viagra uk
This blog is containing a nice information of funny YouTube movies, I liked it a lot.
generic viagra
Wow, nice YouTube video regarding how to install virtual directory, I fully got it. Thanks keep it up.
buy viagra online
It is the happiest time of my life so far, when I am watching these} funny movies here, since after complete day working I was so tired and now feeling perfectly.
viagra without a doctor prescription
I have study much regarding without charge blogging blogs, however I have no clear idea concerning that, can any one tell me which one is finest for free blogging and site-building?
viagra online
What a nice YouTube video it is! Amazing, I liked it, and I am sharing this YouTube record with all my colleagues.
buy viagra online
Hi there to all, it’s genuinely a pleasant for me to visit this site, it includes important Information.
viagra pills
It’s truly very complicated in this active life to listen news on TV, therefore I simply use web for that purpose, and take the most up-to-date information.
viagra tablets
It’s going to be finish of mine day, but before ending I am reading this wonderful post to increase my knowledge.
women viagra
That’s truly a nice YouTube movie described in this post concerning how to write a paragraph, thus i got clear idea from here.
viagra without a doctor prescription
Very rapidly this website will be famous among all blogging and site-building viewers, due to it’s fastidious posts
viagra prices
These all YouTube gaming movies are genuinely in nice quality, I watched out all these along by my colleagues.
viagra substitute
Really movie is the display of some one’s feelings; it presents the lesson to the viewers.
online viagra
Hello, just wanted to tell you, I enjoyed this article. It was practical. Keep on posting!
viagra uk
I read this piece of writing fully about the comparison of latest and preceding technologies, it’s amazing article.
viagra generic availability
Hi, yes this post is truly pleasant and I have learned lot of things from it about blogging. thanks.
sildenafil 100 mg
I am sure this article has touched all the internet visitors, its really really fastidious piece of writing on building up new website.
viagra pill
This piece of writing on the topic of Web optimization is truly fastidious one, and the back links are genuinely very valuable to promote your site, its also known as Search engine optimisation.
online viagra
I have read so many content on the topic of the blogger lovers except this post is truly a pleasant post, keep it up.
100 mg viagra lowest price
It’s going to be end of mine day, except before finish I am reading this great post to improve my knowledge.
viagra uk
Hi my mates, how is everything? Here it is in fact fastidious YouTube videos collection. i enjoyed a lot.
female viagra pills
Hi there I am from Australia, this time I am watching this cooking related video at this web page, I am in fact cheerful and learning more from it. Thanks for sharing.
viagra generic
Hi there to all, the contents present at this site are truly awesome for people experience, well, keep up the nice work fellows.
viagra 100 mg
It’s my first go to see to this website, and I am in fact surprised to see such a good quality YouTube video posted at this point.
buy generic viagra online
Hi, this weekend is pleasant for me, as this moment i am reading this great educational article here at my residence.
buy viagra online
Thanks designed for sharing such a good thinking, piece of writing is fastidious, thats why i have read it entirely
sildenafil 100mg
I also like Flash, but I am not a good designer to design a Flash, however I have software by witch a Flash is automatically created and no additional to hard working.
female viagra pills
Hello, can any body assist me how to down load this video tutorial from this web site, I have watched and listen it at this time but wish for to down load it.
women viagra
I am truly pleased to read this webpage posts which carries tons of useful data, thanks for providing these statistics.
women viagra
Hahahahahahaha, this politics related YouTube video is in fact so comic, I loved it. Thanks in favor of sharing this.
generic viagra prices
Why YouTube video clips are shared everywhere? I think one motive is that these are easy to obtain embed code and paste that code somewhere you wish for.
viagra generic
Its absolutely brilliant YouTube video in terms of features, genuinely nice, its quality is in fact appreciable.
viagra pills
Hello, I check your new stuff like every week. Your humoristic style is awesome, keep doing what you’re doing!
viagra uk
Informative article, just what I was looking for.
viagra 100 mg
I am actually keen of reading content on the topic of making new webpage, or even concerning Search engine optimisation.
generic viagra
Genuinely when someone doesn’t understand afterward its up to other users that they will assist, so here it occurs.
viagra coupon
I am genuinely keen of reading posts on the topic of developing new blog, or even about SEO.
viagra coupons
Hi, after reading this amazing paragraph i am as well glad to share my familiarity here with mates.
where to buy viagra
I got so bored today afternoon, but when I watched this YouTube humorous clip at this blog I turn out to be fresh and delighted too.
natural viagra
What a nice YouTube video it is! Remarkable, I loved it, and I am sharing this YouTube film with all my friends.
buy viagra online
Oh! Wow its truly a comic and jockey YouTube video posted at this juncture. thanks for sharing it.
viagra cost
Highly descriptive post, I loved that bit. Will there be a part 2?
viagra coupon
Hi friends, I am for a second time here, and reading this paragraph related to Search engine marketing, its also a good paragraph, thus keep it up.
cost of viagra
Hello everyone, it’s my first go to see at this website, and article is genuinely fruitful in favor of me, keep up posting these content.
100 mg viagra lowest price
Currently YouTube movies quality is more better and better, therefore that’s the reason that I am watching this video at here.
female viagra pills
I’m gone to say to my little brother, that he should also pay a visit this website on regular basis to obtain updated from most up-to-date gossip.
buy viagra
Hi there everybody, I know YouTube video includes less bytes of memory due to that its quality is bad, however this YouTube video has wonderful picture features.
online viagra
Graphics are really nice source of education instead of content, its my know-how, what would you say?
viagra natural
All right I am also in look for of Flash tutorials, as I desire to learn more concerning flash, thus if you have please post it here.
sildenafil citrate
Hurrah, what a quality it is! Because mostly YouTube videos have no nice feature, but this is in fact a nice quality video.
buy viagra
I’m gone to tell my little brother, that he should also pay a visit this weblog on regular basis to take updated from most recent news update.
female viagra pills
When someone writes an article he/she keeps the thought of a user in his/her mind that how a user can understand it. Thus that’s why this paragraph is amazing. Thanks!
100 mg viagra lowest price
This information is worth everyone’s attention. How can I find out more?
cost of viagra
Your means of explaining everything in this paragraph is actually pleasant, all can simply know it, Thanks a lot.
viagra for sale
One more technique in favor of advertising your webpage is posting comments on different directories with your website link.
viagra prices
Yes you are correct, YouTube is most excellent video distribution site, as YouTube is a lightly no much streaming time rather than other blogs.
buy viagra
Asking questions are truly pleasant thing if you are not understanding something entirely, except this article gives fastidious understanding yet.
female viagra pills
I constantly emailed this weblog post page to all my associates, for the reason that if like to read it afterward my friends will too.
viagra generic
Remarkable video, truly a pleasant quality, this YouTube video touched me a lot in terms of features.
viagra uk
Its my good fortune to pay a quick visit at this blog and find out my required paragraph along with video demonstration, that’s YouTube video and its also in quality.
cost of viagra
Hmmm, yup no doubt Google is most excellent for blogging however today word press is also fastidious as a blogging since its SEO is pleasant defined already.
sildenafil citrate
constantly i used to read smaller content that also clear their motive, and that is also happening with this article which I am reading at this time.
viagra natural
When I saw this web site having amazing quality YouTube video tutorials, I decided to watch out these all video lessons.
viagra cost
Hurrah! At last I got a website from where I can truly take valuable information concerning my study and knowledge.
female viagra pills
I am keen of learning Flash, is there any paragraph related to Flash, if okay, then please post it, thanks.
generic viagra prices
If any one wishes to be a successful blogger, then he/she must look at this article, since it includes al} techniques related to that.
female viagra pills
If you desire to grow your knowledge just keep visiting this web page and be updated with the most recent gossip posted here.
viagra uk
One more thing that I desire to share here is that, whatever you are using free blogging service but if you don’t update your webpage on regularly basis then it’s no more attraction.
viagra natural
What’s up friend, what a quality is! For this YouTube video, I am genuinely impressed, because I have never seen fastidious quality YouTube video before,
viagra without a doctor prescription
This article is related to web programming is really good in support of me because I am website programmer. Thanks for sharing keep it up.
viagra without a doctor prescription
Hi, yes brother there are sure many blogging web sites, but I recommend you to use Google’s free of charge blogging services.
buy viagra
In fact programming is nothing however it’s a logic, if you get control on it afterward you are the master else nil.
buy viagra online
I am actually thankful to the owner of this website who has shared this great post at here.
female viagra pills
I am really eager of reading articles concerning making new webpage, or even regarding SEO.
buy viagra online
Hello Dear, are you genuinely visiting this site on a regular basis, if so then you will without doubt take fastidious knowledge.
cost of viagra
I am happy to see this you tube video at this website, thus now I am also going to upload all my videos at YouTube web page.
buy viagra online
It’s going to be finish of mine day, except before end I am reading this enormous article to improve my knowledge.
viagra substitute
Wow, what a video it is! Actually pleasant feature video, the lesson given in this video is truly informative.
generic viagra available
This is my first time pay a quick visit at here and i am really pleassant to read all at alone place.
viagra coupon
This article offers clear idea for the new viewers of blogging, that in fact how to do blogging.
viagra pill
This article is related to web programming is in fact pleasant in support of me as I am website developer. Thanks for sharing keep it up.
viagra pill
I am glad to watch this you tube video at this site, thus now I am also going to upload all my video tutorials at YouTube web site.
buy viagra 100 mg
Hi, this weekend is fastidious designed for me, because this point in time i am reading this great educational piece of writing here at my home.
viagra coupon
All right I am also in look for of Flash tutorials, since I wish for to learn more concerning flash, therefore if you have please post it here.
cheap generic viagra
My grand father all the time used to watch YouTube comical video clips, hehehehehe, for the reason that he needs to be delighted always.
online viagra
Some viewers are keen to watch comical video clips, except I like to watch terrible video clips on YouTube.
viagra coupons
Hi there, for all time i used to check website posts here early in the daylight, for the reason that i love to learn more and more.
buy viagra 50 mg
For the reason that the admin of this website is working, no uncertainty very shortly it will be renowned, due to its feature contents.
viagra online
Hi, how’s it going? Just shared this post with a colleague, we had a good laugh.
cheap viagra
Hello, its understandable post along with this YouTube video; I can’t think that one can not understand this simple piece of writing having with video demonstration.
viagra for women
In my residence when I get bored, then I just ON my computer and open YouTube website to watch the YouTube video lessons.
viagra generic
No matter if some one searches for his necessary thing, thus he/she wants to be available that in detail, so that thing is maintained over here.
generic viagra available
What’s up dear, me and my mom are as well watch humorous video clips but after I done my homework
viagra cost
If you would like to get much from this piece of writing then you have to apply such strategies to your won website.
order viagra online
If some one needs expert view on the topic of blogging and site-building after that i recommend him/her to pay a visit this website, Keep up the pleasant job.
viagra cost
Hello dear, are you enjoying with this comic YouTube video? Hmmm, that’s good, I am also watching this YouTube funny video at the moment.
sildenafil citrate
Hi there my mates, how is everything? Here it is in fact nice YouTube videos collection. i enjoyed a lot.
viagra online
As the admin of this web page is working, no question very shortly it will be well-known, due to its quality contents.
generic viagra online mail-order pharmacies
There is also one additional technique to increase traffic for your website that is link exchange, therefore you also try it
viagra pill
I am really grateful to the owner of this web page who has shared this fantastic article at at this place.
viagra coupons
Hi, this weekend is good for me, as this moment i am reading this wonderful informative post here at my house.
viagra super active online mail-order pharmacies
Hi dear, me plus my mom are as well watch comic movies but after I completed my homework
viagra natural
Okay this YouTube video is much better than previous one, this one has nice picture quality as well as audio.
viagra without a doctor prescription
Awesome video, really a nice quality, this YouTube video touched me a lot in terms of features.
hard on viagra jelly online mail-order pharmacies
What’s up it’s me Fiona, I am also visiting this web site regularly, this web page is actually fastidious and the visitors are actually sharing fastidious thoughts.
viagra online
Wow, nice YouTube video regarding how to establish virtual directory, I totally got it. Thanks keep it up.
viagra tablets
Inspiring story there. What occurred after? Good luck!
viagra substitute
It’s very trouble-free to find out any matter on web as compared to textbooks, as I fount this piece of writing at this site.
generic for viagra
Hello dear, are you enjoying with this comical YouTube video? Hmmm, that’s fastidious, I am also watching this YouTube humorous video at the moment.
generic viagra available
Hello Jackson, if you are a new net user afterward you must pay a visit all the time this web page and read the updated articles or reviews at here.
generic viagra online mail-order pharmacies
Hahahaha, what a funny this YouTube record is! I am still laughing, thanks to admin of this site who had posted at this site.
viagra generic availability
What’s up kids, you all should watch comic movies, however take into account that first study then enjoyment ok.
viagra plus online mail-order pharmacies
Hi, after reading this remarkable paragraph i am too glad to share my know-how here with friends.
viagra 100 mg
Ridiculous quest there. What happened after? Good luck!
viagra buy
Yup, you are correct Google is the most excellent for blogging, Google’s webpage also come fast in search engines too.
viagra generic
Good way of describing, and nice piece of writing to get information about my presentation subject matter, which i am going to convey in academy.
female viagra pills
Today I was so tired, and now this time I have got some rest by seeing this comic YouTube video, thanks, keep it up.
viagra tablets
Hi there, I check your new stuff daily. Your writing style is awesome, keep it up!
viagra 100mg
I am in fact keen of watching funny movies at youtube, and this videos is truly so comic, hehehhe.
hard on viagra jelly online mail-order pharmacies
In fact picture is the presentation of some one’s feelings; it provides the lesson to the users.
viagra coupons
I got so bored today afternoon, however while I watched this YouTube funny clip at this website I turn into fresh and happy too.
viagra pill
Can you please send me the code for this script or please enlighten me in detail regarding this script?
buy sildenafil online
Its my fortune to go to see at this weblog and find out my required post along with video demonstration, that’s YouTube video and its also in quality.
viagra buy
What’s up, this weekend is pleasant for me, since this point in time i am reading this impressive informative piece of writing here at my residence.
viagra substitute
Hi, I also would like to share my thoughts at this place, when i don’t know even about a straightforward thing related to PHP, I always go to explore that from web.
100 mg viagra lowest price
My boss is as well keen of YouTube funny videos, he also watch these even in organization hehehe..
100 mg viagra lowest price
This paragraph is fastidious and fruitful in support of all new PHP related web programmers; they have to read it and perform the practice.
cheap viagra online
Hello mates, how is the whole thing, and what you wish for to say concerning this article, in my view its actually awesome designed for me.
female viagra
YouTube contains not only comic and humorous video lessons but also it contains educational related video tutorials.
female viagra
Wow, what a video it is! Really good feature video, the lesson given in this video is in fact informative.
canadian viagra
What’s up dear, are you enjoying with this comic YouTube video? Hmmm, that’s nice, I am as well watching this YouTube funny video at the moment.
sildenafil cost
This is my first time go to see at here and i am genuinely happy to read everthing at single place.
100 mg viagra lowest price
Hi there children, you all have to watch comical video tutorials, however remember that first study then enjoyment okay.
viagra coupon
It is the happiest day of my life so far, when I am watching these} funny video clips here, because after full day working I was so tired and now feeling well.
generic viagra
Please upload more video lessons related to cooking if you have, since I desire to learn more and more about all recipes of cooking.
sildenafil online
If you are concerned to learn Web optimization methods then you should read this post, I am sure you will take much more from this piece of writing regarding Search engine marketing.
viagra pill
I got this web site from my buddy who informed me concerning this website and now this time I am browsing this site and reading very informative articles here.
viagra coupon
What’s up friend, what a quality is! For this YouTube video, I am genuinely pleassant, since I have never seen fastidious quality YouTube video before,
viagra coupons
The techniques mentioned in this post about to increase traffic at you own website are really fastidious, thanks for such nice post.
viagra for sale
Some people are eager to watch comical video clips, however I like to watch terrible videos on YouTube.
generic viagra
Hi colleagues, is there any other pleasant weblog related to JavaScript posts, while this one is good for PHP programming.
cheap 50mg viagra
When someone writes an post he/she retains the image of a user in his/her mind that how a user can know it. Thus that’s why this piece of writing is amazing. Thanks!
online viagra
My chief is also keen of YouTube comical videos, he also watch these even in company hehehe..
buy viagra online
Hello, I just wanted to mention, I disagree. Your post doesn’t make any sense.
sildenafil
Hi Jackson, if you are a new internet user after that you must go to see all the time this site and read the updated content at at this place.
viagra
I am in fact keen of watching comic movies at youtube, and this video clip is truly so comical, hehehhe.
cost of viagra
For newest news you have to go to see internet and on internet I found this web page as a finest web site for hottest updates.
viagra on line
Hi there to every body, it’s my first pay a visit of this web site; this website consists of awesome and actually excellent information designed for visitors.
buy viagra online
If some one wants expert view about blogging after that i recommend him/her to pay a quick visit this weblog, Keep up the pleasant work.
buy viagra
Hi there Dear, are you really visiting this web site on a regular basis, if so after that you will without doubt obtain nice experience.
viagra jelly online mail-order pharmacies
One other method in favor of promoting your webpage is posting comments on unique directories with your webpage link.
viagra 100mg
Awesome YouTube video clips posted at this website, I am going to subscribe for regularly updates, as I don’t would like to fail to take this series.
buy viagra 100 mg
Of course high resolution film quality carries much memory, that’s why it provides improved feature.
viagra coupon
Hi i am kavin, its my first time to commenting anywhere, when i read this article i thought i could also make comment due to this good article.
buy viagra online
Every weekend i used to go to see this web page, because i want enjoyment, since this this web site conations actually fastidious funny material too.
red viagra online mail-order pharmacies
Genuinely it’s referred to as Search engine optimisation that when i search for this paragraph I found this site at the top of all web sites in search engine.
sildenafil 100mg
Downloading information from this web page is as easy |as clicking the mouse rather than other web pages which move me here and there on the webpages.
viagra generic availability
Hi there, just wanted to tell you, I liked this article. It was funny. Keep on posting!